- Υπεγράφη η σχετική σύμβαση από το Δήμαρχο Λαρισάιων Απ. Καλογιάννη
Αρχίζουν οι εργασίες για την κατασκευή του «Κέντρου Πολιτισμού και Εκπαίδευσης Ευπαθών ομάδων», στην συνοικία Αβέρωφ και ειδικότερα επι της οδού Γαριτσίου, mμετά την υπογραφή της σχετικπής σύμβασης από το Δήμαρχο Λαρισαίων Απ. Καλογιάννη και τον εκπρόσωπο της αναδόχου εταιρείας «Εκτωρ Τεχνική Α.Ε.».
Σημειώνεται ότι το έργο είναι ενταγμένο στο ΕΣΠΑ (ΠΕΠ Θεσσαλίας) και ο προυπολογισμός του ανέρχεται στα 667.000 ευρώ περίπου.
Με το έργο, θα αποπερατωθεί το διώροφο κτίριο με ισόγειο και υπόγειο το οποίο αρχικώς προοριζόταν για στέγαση ΚΑΠΗ του Δήμου Λαρισαίων. Χρήστες του κτιρίου θα είναι ευπαθείς ομάδες του πληθυσμού του Δήμου Λαρισαίων και γι αυτό κατά την εκπόνηση της μελέτης από τη Διεύθυνση Τεχνικών Υπηρεσιών του Δήμου Λαρισαίων, έχουν ληφθεί υπόψη όλοι οι κανόνες εξασφάλισης της προσβασιμότητας που αφορούν τις ευπαθείς ομάδες και τα άτομα με αναπηρία.
Το κτίριο βρίσκεται σε οικόπεδο εμβαδού 246.48 μ2, ενώ ο φέρων οργανισμός του κτιρίου και η μόνωση του είναι αποπερατωμένα βάσει της υπ. αρ. 35/2011 Οικοδομικής Άδειας η οποία εκδόθηκε από την Διεύθυνση Πολεοδομίας του Δήμου Λαρισαίων.
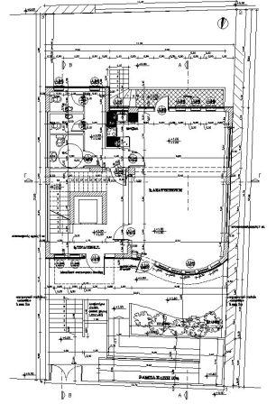
Το κτίριο εχει συνολική δόμηση 294,29 μ2 και αναλυτικότερα θα περιλαμβάνει:
- Υπόγειο με βοηθητικές χρήσεις αποθήκης και ηλεκτρομηχανολογικών εγκαταστάσεων εμβαδού 107,30 μ2.
- Ισόγειο εμβαδού 108,59 μ2 το οποίο θα περιλαμβάνει χώρο υποδοχής, αίθουσα πολιτιστικών δραστηριοτήτων και χώρους υγιεινής. Στον χώρο του ισογείου θα διοργανώνονται ψυχαγωγικές δράσεις, μουσικοκινητικά παιχνίδια, θεατρικό παιχνίδι, επετειακές εκδηλώσεις. Θα διασυνδεθεί με τους Συλλόγους ΑΜΕΑ, ΟΑΕΔ, ΚΔΑΠ ΑΜΕΑ, σχολεία ΑΜΕΑ.
- Α’ Όροφος εμβαδού 101,28 μ2, ο οποίος θα περιλαμβάνει γραφειακούς χώρους συμβουλευτικών συναντήσεων, διοίκησης, κλπ. Στους χώρους του 1ου ορόφου θα φιλοξενούνται δραστηριότητες επιμόρφωσης πάνω σε βασικές αρχές ηλεκτρονικών υπολογιστών. Στον ίδιο όροφο θα λειτουργήσει Κοινωνικό Φροντιστήριο για παιδιά σχολικής ηλικίας καθώς επίσης και Σχολές Γονέων. Παράλληλα στον ίδιο όροφο θα λειτουργεί Γραφείο Συμβουλευτικής, Επαγγελματικού Προσανατολισμού και Προώθησης στην Απασχόληση, το οποίο θα παρέχει συμβουλευτικές υπηρεσίες, ψυχολογική υποστήριξη και ενημέρωση σχετικά με ευκαιρίες απασχόλησης, Γραφείο πρόληψης υγείας καθώς και το γραφείο διοικητικής υποστήριξης.
- Β’ όροφος εμβαδού 84.42 μ2, ο οποίος θα περιλαμβάνει αίθουσα εκπαίδευσης-ενημέρωσης και χώρους υγιεινής. Στον 2ο όροφο θα γίνονται δράσεις εκπαίδευσης και ενημέρωσης ευπαθών ομάδων. Οι χώροι θα προσφέρονται για εκπαιδευτικές πολιτιστικές δραστηριότητες όπως μαθήματα χορού, προβολές ταινιών κλπ. Θα λειτουργεί επίσης εκθεσιακός χώρος (φωτογραφίας, ζωγραφικής κλπ). Επιπλέον, στο χώρο αυτό θα υλοποιούνται πολιτιστικές και δημιουργικές δραστηριότητες απασχόλησης για παιδιά ωφελούμενους (πχ. θεατρικό παιχνίδι, χορός)
Παρόντες στην υπογραφή της σύμβασης ήταν και υπηρεσιακά στελέχη της Διεύθυνσης Τεχνικών Υπηρεσιών του Δήμου Λαρισαίων.


